Prodej atypického rodinného bytu v srdci Karlína!

Připraveno pro Vás

Prodej atypického rodinného bytu v srdci Karlína!

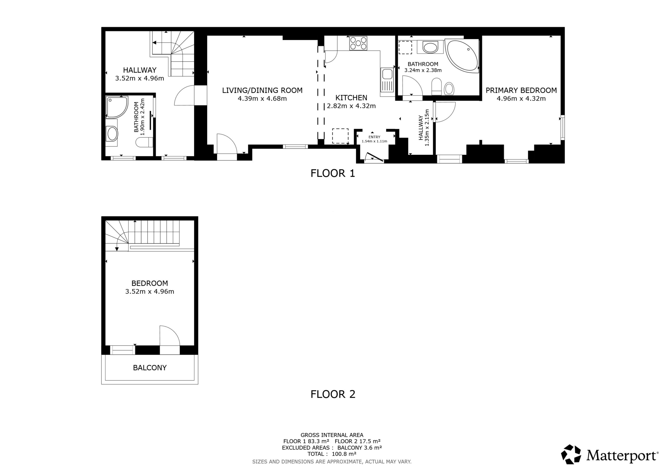
V jedné z nejžádanějších částí Prahy – v samotném srdci Karlína – nabízíme výjimečný mezonetový byt 4+kk o celkové ploše 92,29 m² (včetně balkonu), situovaný v 1. a 2. nadzemním podlaží kompletně rekonstruovaného secesního činžovního domu.


Tady nejde jen o metry čtvereční. Tady jde o atmosféru. Byt je orientován do klidné dvorní části domu, mimo ruch ulice, což mu dodává téměř až překvapivé ticho a intimitu. Vstup do domu je z přední části, takže dvůr zůstává komorním prostorem s minimálním provozem – bezpečný, klidný, s možností krátkodobého parkování a po dohodě i pronájmu parkovacího stání.

Tento byt byl domovem umělců. A je to znát. Interiér vznikal s citem, kreativitou a respektem k prostoru.
Ručně vyráběné mozaiky v kuchyni i na parapetech, práce se dřevem, krbová kamna, promyšlené detaily, které nepůsobí okázale, ale přirozeně. Velkorysá knihovna, chytré úložné prostory, světlo proudící do dvorního ticha – všechno dohromady vytváří harmonii, která se dnes hledá jen těžko. Byt působí autenticky, živě a zároveň klidně. Je to prostor, kde se tvoří, čte, hraje na piano, vaří s přáteli a večer sedí u krbových kamen. Po dohodě je možné ponechat kompletní vybavení včetně piana – a převzít tak nejen byt, ale i jeho atmosféru.

Karlín není jen adresa. Je to komunita, energie, kombinace historie a moderního městského života.
Metro i tramvaj jsou dvě minuty chůze. Kavárny, restaurace, školy, školky, designové obchody i řeka s cyklostezkou – vše je doslova za rohem. Ráno běh podél Vltavy, dopoledne práce v centru, večer víno v oblíbeném bistru.
Zde bydlíte v centru dění, ale spíte v klidu dvora.

Dispozice bytu umožňuje stavební rozdělení na dvě jednotky 2+kk, což otevírá zajímavé investiční možnosti. Díky lokalitě, dispozici i charakteru prostoru je byt ideální nejen pro rodinné bydlení, ale i pro krátkodobé či střednědobé pronajímání. Karlín dlouhodobě patří mezi nejžádanější pražské čtvrti jak mezi expaty, tak mezi turisty hledající autentické bydlení mimo hotelový standard. Satelitní připojení, bezpečnostní kamerový systém v domě a bezproblémové SVJ bez dluhů jsou samozřejmostí.


Základní informace:
– 4+kk, 92,29 m² včetně balkonu
– osobní vlastnictví, možnost financování hypotékou
– dům po kompletní rekonstrukci

služby (4 osoby): 3 823 Kč
elektřina: 1 530 Kč
plyn: 2 260 Kč

Tento byt není sterilní novostavba. Je to prostor s příběhem. A ten může pokračovat.

Ozvěte se mi, rád Vám osobně představím Váš budoucí domov.

Kuchyně s obývacím pokojem jsou propojené, působí jižanským dojmem.

Ložnice je příjemně vzdušná.

Dětský pokoj je příjemně vyřešený.

Pracovna pro klidné trávení času na home office.

Nahoře se nachází ložnice.

V bytě se nacházejí 2 koupelny.

Byt je situován do dvora. Skoro ani nepoznáte, že jste v Praze.

Půdorys pro lepší představu o dispozicích bytu.